МОДЕЛЬ : DN40 (Rp 1,1 / 2) DN50 (Rp2) Тип газа : Природный газ сжиженный нефтяной газ городской газ
Регулятор давления газа или внутренний предохранительный клапан SET252H предназначен для работы при входном давлении до 5 бар.
Этот регулятор оснащён встроенным предохранительным клапаном и механизмом компенсации колебаний входного давления, обеспечивая стабильное и надёжное выходное давление при различных уровнях производительности — от низкой до высокой.
Имеет сертификат COC Национальной организации по стандартизации Ирана (ISIRI) для работы при давлении до 5 бар,
в соответствии со стандартом EN 88-2
и пунктом 17-21-7-1 главы 17 Национальных строительных норм.
Класс точности: AC 10
Класс запорного давления: SG 10
Группа: 2 (в соответствии с EN13611 и INSO 60707)
Диапазон температур: от –15°C до +60°C
Тип газа: природный газ, сжиженный газ, городской газ
Соединения:
Резьбовые: DN40 (Rp 1½), DN50 (Rp 2)
в соответствии со стандартом EN ISO 228-1
Фланцевые: в соответствии со стандартами ISO 7005-1 и DIN 1092-4
Максимальное рабочее входное давление (P₁): 5 бар
Коэффициент безопасности: f = 4 (в соответствии с INSO 22107, приложение C, пункт 6-1, при давлении 2×5 бар)
Подходит для промышленных горелок:
Garmiran, Raadman, Riello, Baltur, Ecoflame, Ecostar
P₂ (mbar) | Цвет пружины | Код пружины | ΔP (mbar) Диапазон перепада давления клапана сброса | Цвет пружины | Код пружины |
|---|---|---|---|---|---|
10 – 22 | Жёлто-зелёный | SYG22/29X100/120 | 10 – 40 | Оранжевый | SO13/17×40/60 |
22 – 37 | Коричнево-красный | SBR22/29X140/180 | 15 – 70 | Синий | SB18/18×45/85 |
37 – 60 | Коричнево-жёлтый | SBY25/29X155/160 | 15 – 70 | Синий | SB18/18×45/85 |
60 – 85 | Коричнево-синий | SBB32/29X123/155 | 40 – 80 | Жёлтый | SY20/17×54/90 |
85 – 150 | Белый | SW35/29X125/140 | 40 – 80 | Красный | SR25/18×50/85 |
150 – 250 | Бесцветный | SC45/29X98/80 | 50 – 120 | Красный | SR25/18×50/85 |
300 – 400 | Коричнево-чёрный | SBD45/29X95/90 | 50 – 120 | Красный | SR25/18×50/85 |
500 – 750 | Коричнево-чёрный | SBD45/29,4X95/90 | 50 – 120 | Красный | SR25/18×50/85 |
Примечание: В этом диапазоне давления указанные значения достигаются только при использовании усиленной диафрагмы.
В клапане предусмотрены четыре возможных точки подключения для измерения давления, устанавливаемые на заводе.
(На схеме стрелка показывает направление потока, а треугольный символ — вид сверху.)
Пример:
SET252H / DN50 / 5 / 85150 / T4
Код заказа: SET252H/DN50/5/85150/T4
Параметр | Описание |
|---|---|
Тип изделия | SET252H |
Размер резьбы (Rp) | DN50 |
Входное рабочее давление (P₁) | 0,5 – 5 бар |
Выходное давление (P₂) | 85 – 150 мбар |
Отвод для измерения давления (на выходе) | T4 |
Тип исполнения | Специальный заказ |

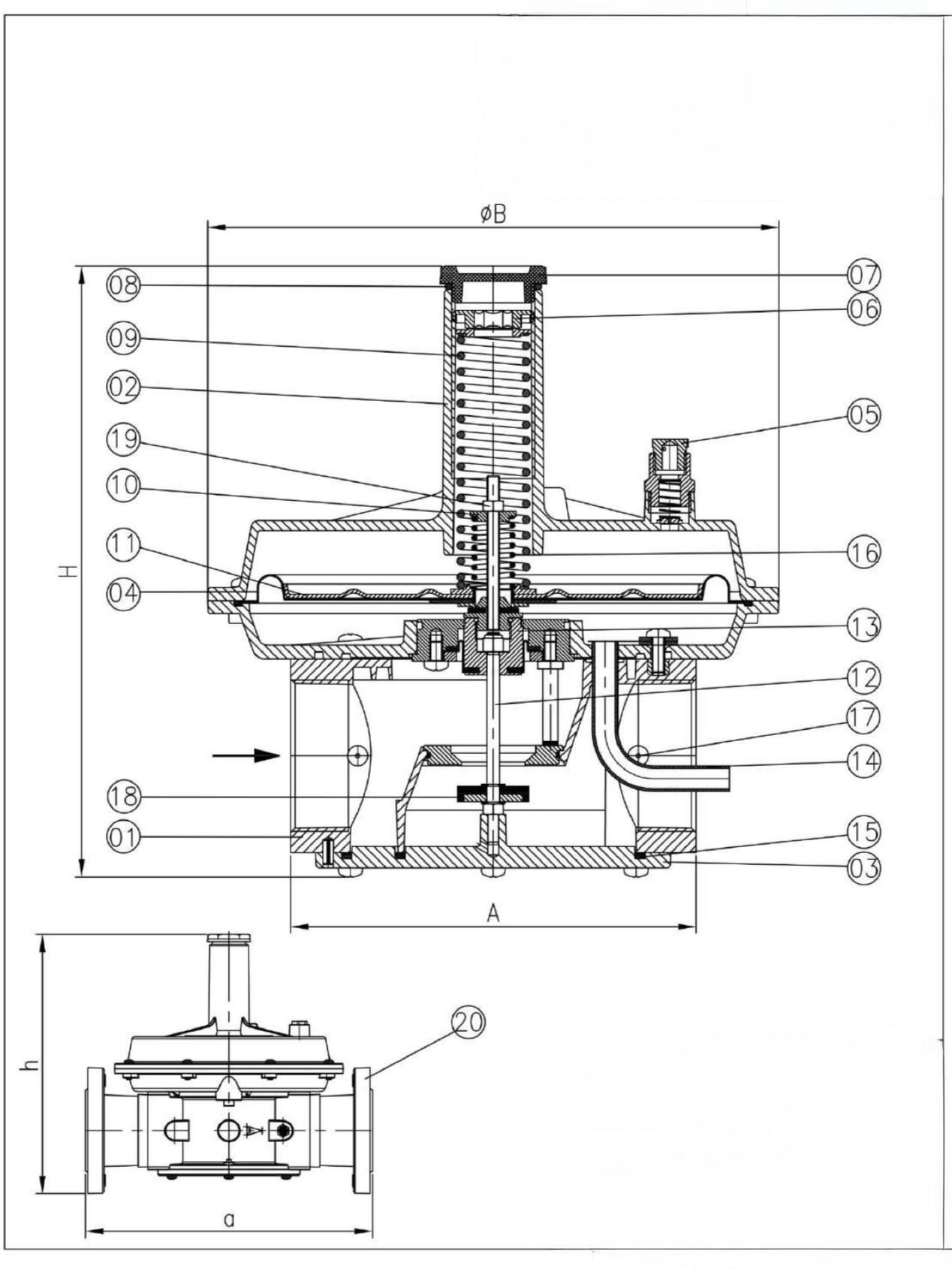
№ | Наименование детали | Материал |
|---|---|---|
01 | Нижний корпус | Алюминий |
02 | Верхний корпус | Алюминий |
03 | Основная диафрагма | NBR |
04 | Крышка диафрагмы | Алюминий |
05 | Винт для стравливания воздуха | Латунь |
06 | Регулировочная пружина давления | Сталь |
07 | Колпак регулировки давления | Алюминий |
08 | Верхняя крышка | Алюминий |
09 | Уплотнительное кольцо | Резина NBR |
10 | Регулировочный шток | Сталь |
11 | Винт крепления диафрагмы | Сталь |
12 | Соединительная трубка | Латунь |
13 | Седло диафрагмы | Латунь |
14 | Вал (ось) | Сталь |
15 | Нижнее уплотнительное кольцо | Резина NBR |
16 | Предохранительная диафрагма | NBR |
17 | Уплотнительное кольцо | Резина NBR |
18 | Входная пластина газа | Алюминий |
19 | Верхняя пластина (левая крышка) | Алюминий |
20 | Выпускной винт | Алюминий |
Соединение | Масса (кг) | A | B | H | h | a |
|---|---|---|---|---|---|---|
DN40, 50 | 3.5 | 160 | 225 | 241 | — | — |
FL40 | 5.7 | 225 | 225 | 256 | — | 335 |
FL50 | 5.3 | 225 | 225 | 256 | — | 290 |
Настоящее руководство объясняет правильный способ установки, запуска и использования данного изделия.
Наличие данного руководства означает, что изделие прошло контроль качества.
При необходимости получения дополнительной информации по установке, обслуживанию или другим вопросам, вы можете обратиться в технический отдел компании Setaak.
Оборудование для измерения давления должно устанавливаться таким образом, чтобы быть защищённым от внешних повреждений.
Место установки должно быть расположено в открытом или хорошо вентилируемом пространстве.
Если установка в открытом пространстве невозможна, необходимо предусмотреть дыхательную (вентиляционную) линию соответствующего диаметра, выводящую в атмосферу, чтобы предотвратить накопление газа.
Давление в вентиляционной линии не должно быть опасным. Для предотвращения попадания воды, насекомых и посторонних предметов в систему вентиляции следует применять двойное соединение с наклонным отводом наружу.
Установка и обслуживание изделия должны выполняться квалифицированным персоналом после тщательного изучения технических данных и инструкций.
Регулятор должен использоваться только по назначению, предусмотренному производителем.
Запрещено использовать устройство с рабочей средой, отличной от указанной в паспорте.
Рабочие параметры должны находиться в пределах, указанных на шильдике изделия и в данном руководстве.
За неправильную эксплуатацию за пределами диапазонов давления и температуры ответственность несёт пользователь.
Все ремонтные работы должны выполняться только с применением оригинальных запасных частей, одобренных производителем.
Использование несертифицированных деталей аннулирует гарантию и техническую поддержку.
Регулятор должен устанавливаться в месте, защищённом от прямого воздействия тепла, влаги и окисления.
При наружной установке необходимо предусмотреть защитный козырёк или кожух для предотвращения попадания дождя и коррозии.
Производитель не несёт ответственности за повреждения, возникшие вследствие неправильной эксплуатации.
Перед началом установки линия подачи газа должна быть перекрыта и находиться под наблюдением до завершения монтажа.
Следите за направлением потока газа, указанным стрелкой на корпусе устройства.
Давление в линии должно быть ниже максимального, указанного на шильдике регулятора.
Не допускается хранение или эксплуатация регулятора под нагрузкой дольше, чем рекомендовано.
Устройство не должно подвергаться воздействию дождя или других внешних факторов.
Вентиляционные и регулировочные элементы нельзя использовать как рычаг или опору.
При монтаже на газопроводе длина резьбы трубы должна соответствовать длине резьбы на корпусе изделия, чтобы избежать повреждения внутренних частей.
Для фланцевых соединений необходимо убедиться в параллельности и соосности фланцев, а также в правильной толщине прокладок, чтобы исключить механические напряжения корпуса.
Рекомендуется регулярная проверка системы для предотвращения утечек газа, например ежегодное испытание на герметичность.
В условиях высокой температуры или плохой вентиляции необходимо предусмотреть защиту от перегрева, электрических дуг и других опасных воздействий.
Перед запуском необходимо убедиться, что условия эксплуатации соответствуют техническим требованиям и обеспечивают безопасную работу оборудования.
Установите регулятор на трубопровод или на любое другое неподвижное основание с надёжной опорой, обеспечив герметичность соединения.
Обратите внимание на указатель направления потока газа, нанесённый на корпус регулятора.
Данный регулятор может представлять потенциальную опасность только при повреждении рабочей диафрагмы.
В этом случае регулятор становится источником постоянного утечка газа через дыхательное отверстие (05).
В чрезвычайных условиях (помещения без вентиляции, при недостаточной периодической проверке), особенно вблизи оборудования, представляющего опасность — таких как сварочные аппараты, источники дуги, электросварка и т.п., — необходимо провести анализ условий эксплуатации и принять соответствующие меры безопасности.
Следует строго соблюдать рекомендации, направленные на предотвращение аварийных ситуаций.
Например: проводить ежегодные проверки оборудования и обеспечить отвод возможных выбросов газа из дыхательных отверстий диафрагм через подходящие вентиляционные (выхлопные) линии наружу.
При эксплуатации в закрытых или непроветриваемых помещениях, учитывая возможную опасность утечки газа, необходимо снять внутренний предохранительный клапан (сброс) с дыхательного отверстия (05) и подсоединить его к вентиляционной трубе, выведенной в атмосферу (соединение G1/4).
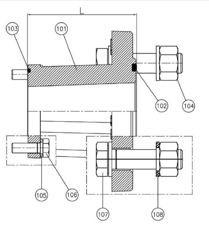
Для выполнения фланцевого соединения регулятора клиент должен при заказе указать необходимость комплекта двух фланцев SET952, соответствующих размеру DN.
Каждый комплект включает:
один цельный фланец (0104),
уплотнительное кольцо (0203),
шайбу (0210),
и комплект уплотнителей.
Производитель рекомендует затягивать болты M8 × 25 N·m с использованием уплотнительного кольца (0203), обеспечивая точную и надёжную установку.
Для регуляторов больших типоразмеров болты M16 × 10 N·m заказываются отдельно.

Размер DN | Масса (кг) | Длина L (мм) |
|---|---|---|
DN 40 | 1.1 | 87.5 |
DN 50 | 0.9 | 65 |
№ | Наименование детали | Материал / Примечание | Размер / Стандарт |
|---|---|---|---|
101 | Цельный фланец DN 40 | Алюминий | 132×130×87.5 |
101 | Цельный фланец DN 50 | Алюминий | 132×130×65 |
102 | Уплотнительная прокладка | NBR | Ø77×37.5 |
103 | Уплотнительное кольцо (O-ring) | NBR | Ø62×2.5 |
104 | Гайка | Стандарт | M16 |
105 | Шайба | Стандарт | Ø15×8.4×1.8 |
106 | Винт с шестигранной головкой | Стандарт | M8×25 |
107 | Винт с шестигранной головкой | Стандарт | M16×60 |
108 | Шайба | Стандарт | Ø28×17×2.7 |
Итоговые размеры: согласно указанным на чертеже.
Материалы деталей: в соответствии с таблицей выше.
Этапы и рекомендации, которые необходимо учитывать при установке фланцевых регуляторов:
Установите регулятор на трубопровод или на неподвижное основание с надёжной опорой.
Уплотнительная прокладка должна быть установлена полностью между фланцами.
Используйте только оригинальные прокладки, поставляемые с изделием.
Болты затягивайте крестообразным способом, как показано на схеме ниже.
Сначала закрутите все болты вручную, затем окончательно затяните гаечным ключом.
Согласно стандарту EN 14317, рекомендуемый момент затяжки для болтов M16 составляет 147 Н·м.
Убедитесь, что все соединения фланцев затянуты равномерно и надёжно.
Регулятор должен устанавливаться таким образом, чтобы винт регулировки пружины (место настройки давления) был направлен вверх.
После установки необходимо проверить правильность работы регулятора.
Недопустимо попадание посторонних предметов внутрь устройства.
После монтажа убедитесь в отсутствии утечек газа.
При эксплуатации или обслуживании необходимо учитывать влияние колебаний входного давления и обеспечивать контроль давления на выходе с помощью соответствующих измерительных приборов.
Для конечного потребителя регулятор должен работать в пределах минимального давления и максимальной безопасности.
Неправильная установка или слабое крепление трубопровода может привести к повышению давления и повреждению регулятора.

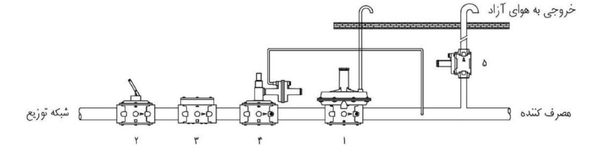
На схеме ниже показан пример применения и последовательность подключения оборудования:
Регулятор давления
SET252H
SET271
SET352X
Фильтр
Ручной запорный клапан
Клапан быстрого срабатывания при превышении давления (SET275)
Предохранительный клапан (сбросной) (SET150)
(На схеме изображена примерная структура распределительной сети.)
⚠️ Внимание:Монтаж, регулировка и техническое обслуживание должны выполняться квалифицированным и обученным персоналом для обеспечения корректной работы регулятора.
Рекомендуется проводить периодические проверки состояния оборудования.
Во время осмотра следует проверять давление на выходе, герметичность соединений и отсутствие утечек газа.
При необходимости диагностики или ремонта внутреннего предохранительного клапана (сброс), снимите крышку (05) и обратитесь в технический отдел производителя.
Перед началом работы убедитесь, что требуемое выходное давление находится в диапазоне, указанном на шильдике регулятора, и что используется соответствующий диаметр трубопровода.
Снимите винт (7), не вращайте регулировочный винт (6) до верхнего предела.
При подаче газа с входным давлением, соответствующим максимальной потребности потребителя, медленно поворачивайте винт регулировки (6) в направлении увеличения давления, пока не будет достигнуто необходимое выходное давление.
Для измерения давления используйте манометрический штуцер (17), если он предусмотрен конструкцией.
Процедура настройки предохранительного клапана выполняется следующим образом:
Сначала перекройте ручной клапан регулятора.
Снимите крышку (7) и при помощи гаечного ключа поверните регулировочную гайку (8) по часовой стрелке до упора. Это необходимо только для создания внутреннего давления в регуляторе.
Далее с помощью ключа медленно вращайте гайку (8) в противоположную сторону (против часовой стрелки), контролируя повышение выходного давления по манометру, подключённому к измерительному штуцеру.
После достижения требуемого значения зафиксируйте регулировочную гайку в заданном положении.
По завершении регулировки клапан должен автоматически открыться и сбросить избыточное давление. После этого извлеките инструмент и установите крышку (9) на место.
Теперь клапан сброса настроен на требуемое давление.
Например, если требуется выходное давление 140 мбар, то, согласно таблице на странице 1, клапан следует настроить при рабочем диапазоне 180–220 мбар.
При транспортировке избегайте ударов, вибраций и механических нагрузок.
Если на корпусе регулятора нанесено покрытие (краска, маркировка и т.п.), не допускайте его повреждения.
Место хранения должно соответствовать условиям, указанным на заводской этикетке изделия.
При демонтаже регулятора установка повторно должна производиться в сухом и чистом помещении.
При работе в условиях высокой влажности или температуры рекомендуется использовать нагревательные или осушающие устройства для предотвращения образования конденсата.
Гарантия на изделие составляет 24 месяца со дня производства и включает устранение возможных неисправностей, а при необходимости — замену изделия.
Покупатель может получить информацию о состоянии гарантии и сервисной поддержке по адресу, указанному на упаковке или шильдике изделия.
Дополнительно предоставляется 12 месяцев технической поддержки и обеспечения запасными частями.
неправильной установки или обслуживания;
несоблюдения инструкций, приведённых в данном руководстве;
использования неподходящих компонентов или соединений;
самостоятельного вмешательства, модификации или замены деталей;
повреждений, вызванных ремонтом или эксплуатацией, не соответствующей назначению изделия.
Соединительная резьба | DN40 (Rp 1,1 / 2) ,DN50 (Rp2) |
| Диапазон входного давления | До 5 Б |
| Диапазон выходного давления | От 10 до 800 миллибар |
| Тип соединения | Резьба |
| стяжка | Опционная опция |
| Точка измерения давления | Опционная опция |
| В соответствии со стандартом | EN88-1,2 (класс точности AC20, класс давления блокировки SG30, группа 2 ) |
| Диапазон температур | От 10 до 60 градусов по Цельсию |
| Тип газа | Природный газ, сжиженный нефтяной газ , городской газ , |
| Дышащая нить | G 1/4 |
| Размеры продукта | 240 * 225 * 160 мм |
| вес | 3500 г |
| Числа в мультфильмах | 1 штук |